Office Building Lease Information

Bismarck Airport has an office building for lease

Building 21 is an office building available for lease starting now. For more information or a tour please contact Airport Administration - 701-355-1808

Building 21 Lease Information Sheet

Downloadable Floor Plan

Building Facts  

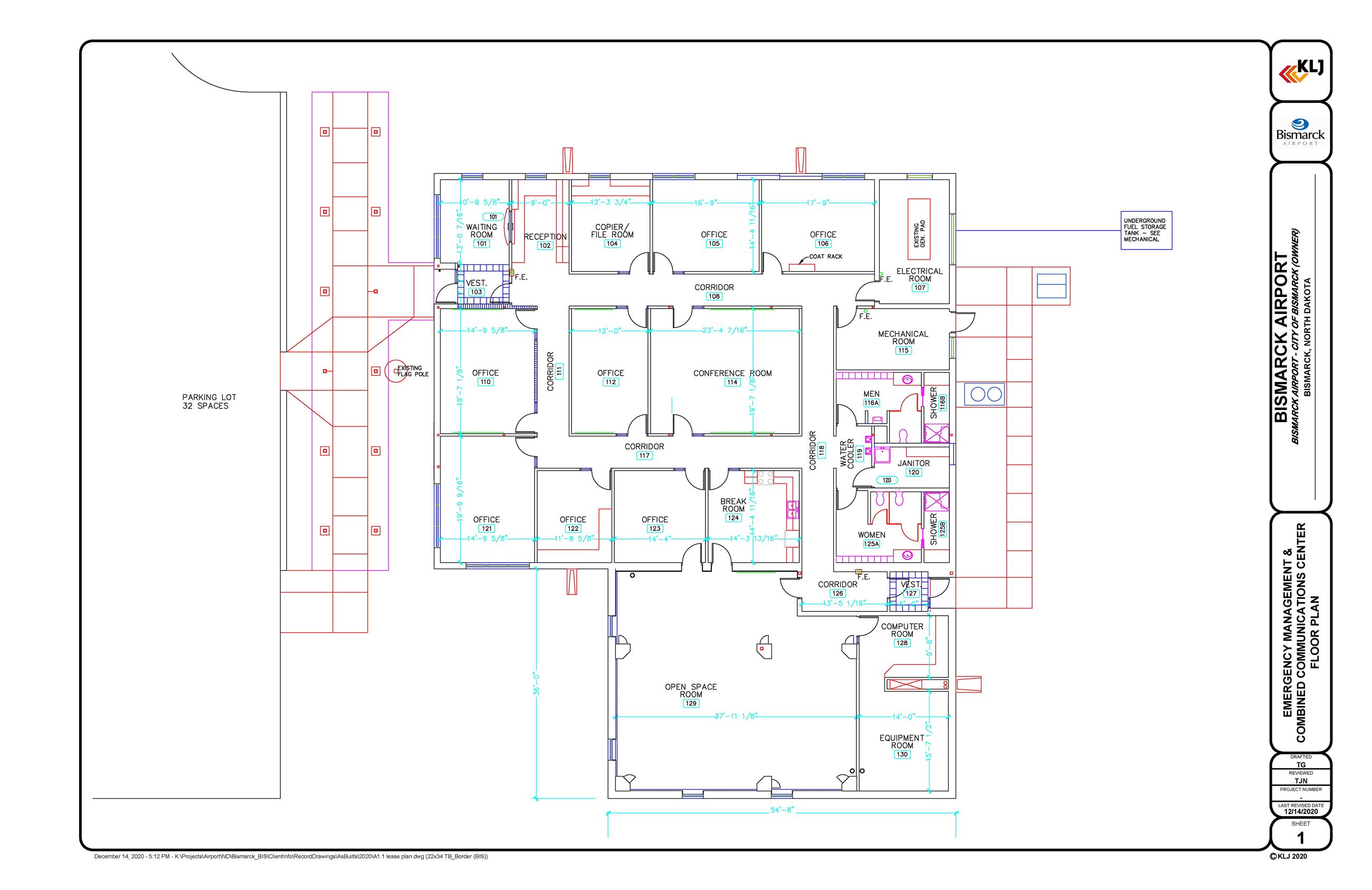
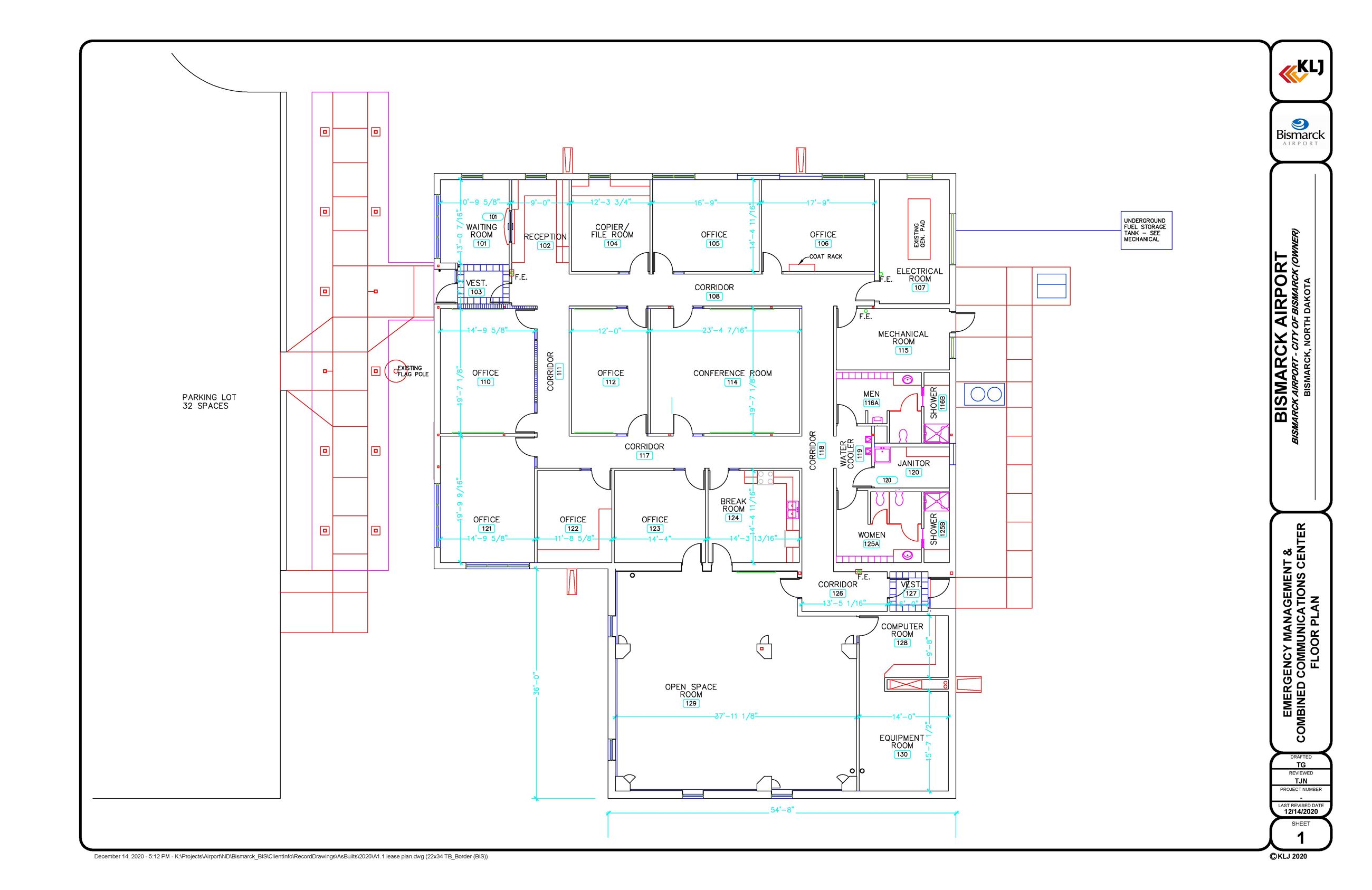
7006 Sq ft Building

•   7 Offices

•    1 Conference Room

•    1 Reception Area and Waiting Room

•    1 Copier/File Room

•    1 Breakroom

•    1 Open Space/Cubical Area (2003 Addition) 1949 Sq ft

•    Men and Women’s Bathroom with showers

•    HVAC – Gas Forced Air

•    Outdoor Patio

Building Features

    Fenced Parcel (49,200 Sq ft) with Controlled Access

    32 Parking Spots (2 Handicapped)

    Lighted Parking Lot

    Security Cameras Outside

    Flag Pole

    Canopy Out Front

    Reception Area

    Sprinkler System

    Floor Plug-Ins

    Fiber Line to Building with ethernet connections on almost every Wall

    Numerous Outlets

    Generator with Transfer Switch for Backup Power

    Showers and lockers in Restrooms

    Radio Antenna Tower (height?)

    Outdoor Patio with Picnic Table

    Wiring for Control of Monitors throughout the Building

    Stove and Fridge in Breakroom

    Outdoor Sign Available for company signage


Exterior Pictures

  1. 1 Controlled Access
  2. 2 Front Angle
  3. 3 Front
  4. 4 Parking Lot
  5. 5 Picnic Table
  6. 6 Sign
  7. 7 South Side

Building 21 Floor Plan

Building 21 Floor Plan
Building 21 Walk-Thru Video
Building 21 Aerial Video